Advanced sheet metal and weldments
This project showcases expertise in advanced sheet metal and weldment design, utilizing SolidWorks to create complex, high-precision fabrications. The scope involved engineering structural frames and enclosures, with a focus on manufacturability, cost-effectiveness, and structural integrity. Key responsibilities included creating detailed 3D models, developing flat patterns for CNC cutting, defining weldment cut-lists, and producing comprehensive fabrication drawings. The project highlights a deep understanding of material properties, welding techniques, and modern manufacturing processes to deliver robust and reliable mechanical solutions.

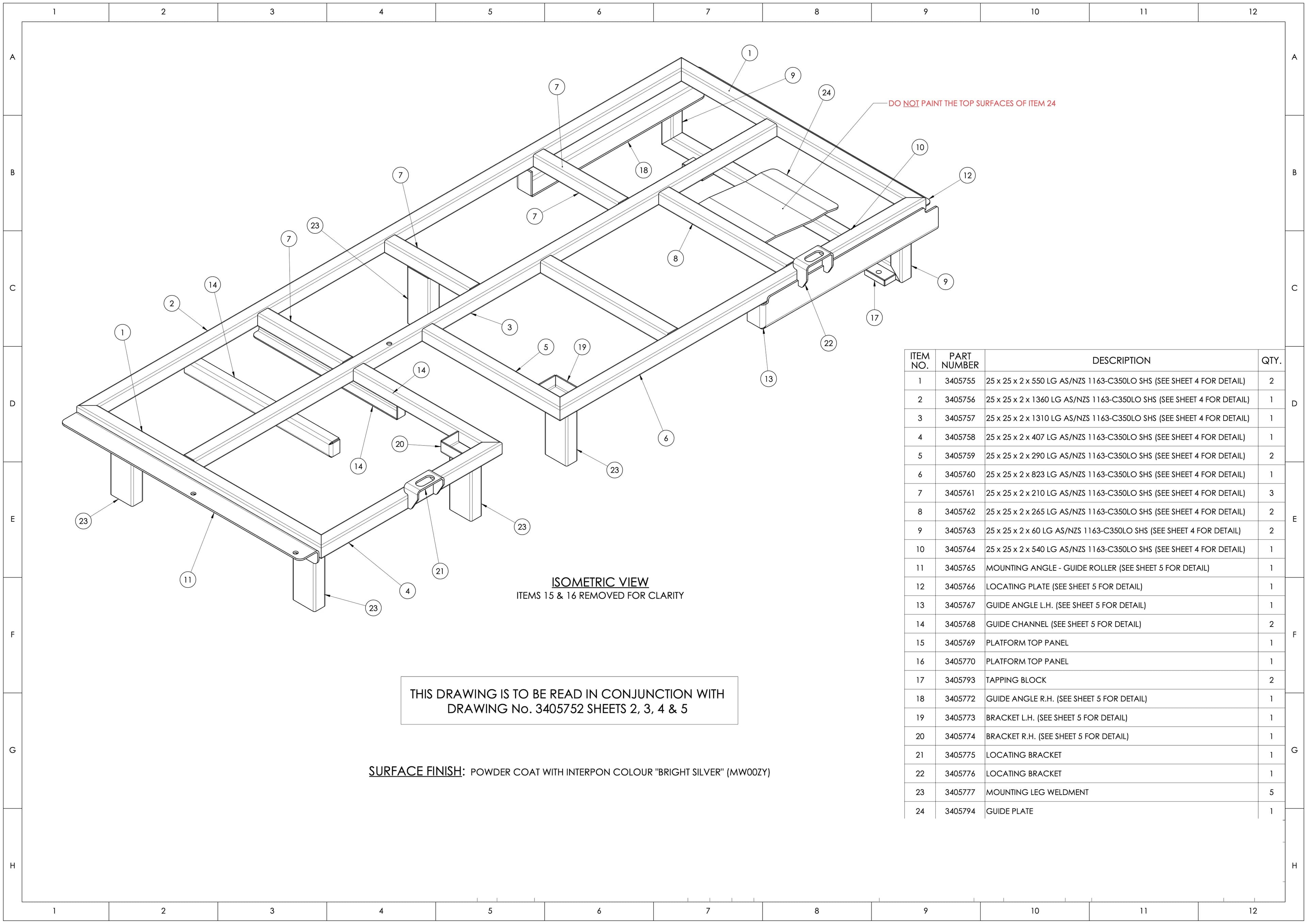
3D render of a complex weldment structure.

Fabrication drawing for the sheet metal component.

Detailed view of a welded joint in the 3D model.

Final assembly of the sheet metal and weldment project.