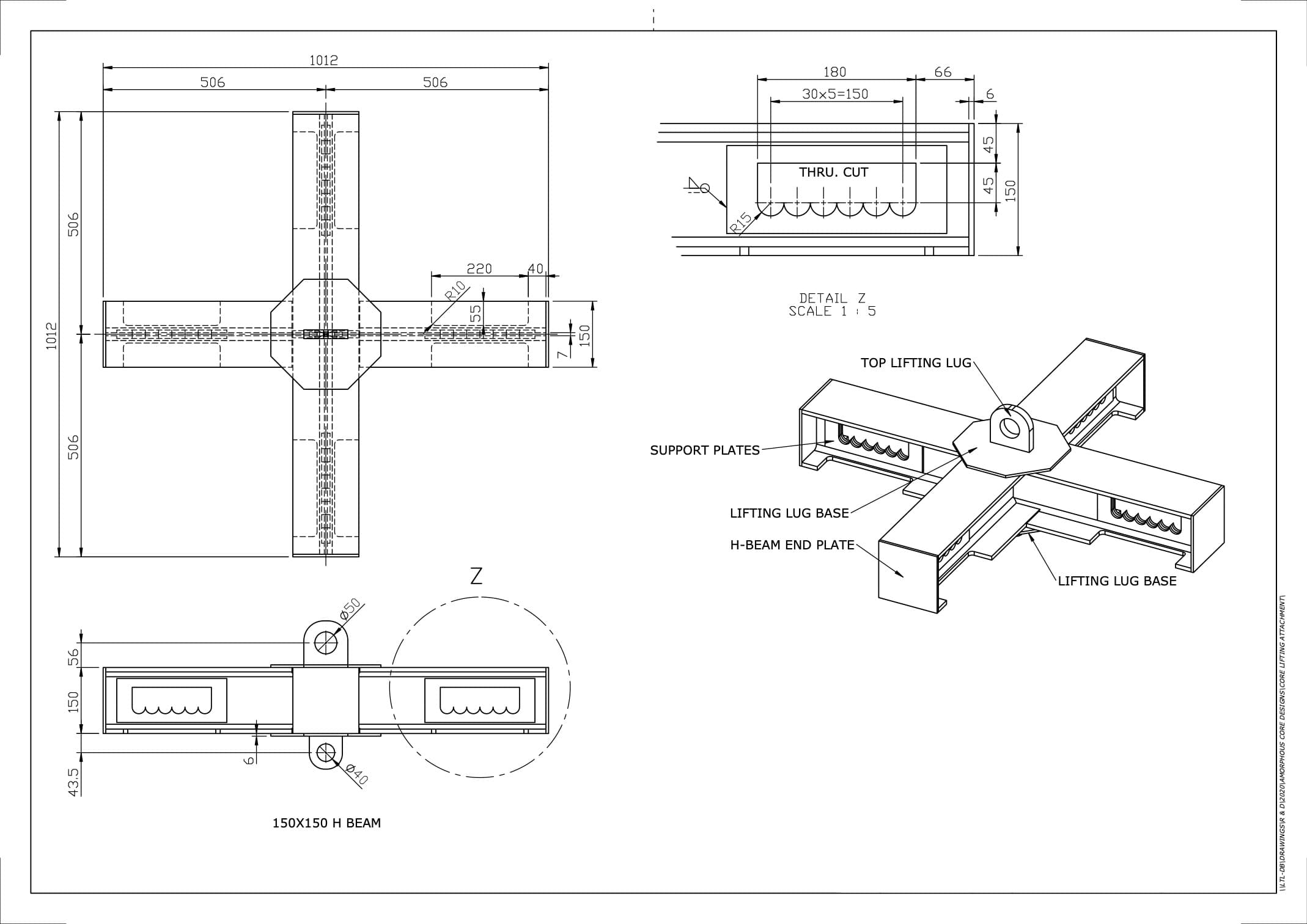
Special 5 point hanger to lift amorphous core
Designed a special 5-point hanger for lifting amorphous cores, ensuring safe and efficient handling during manufacturing and assembly processes. The design was validated through FEA to guarantee structural integrity under load.

CAD screenshot of the 5-point hanger.

Physical 5-point hanger component.

Technical drawing of the 5-point hanger.